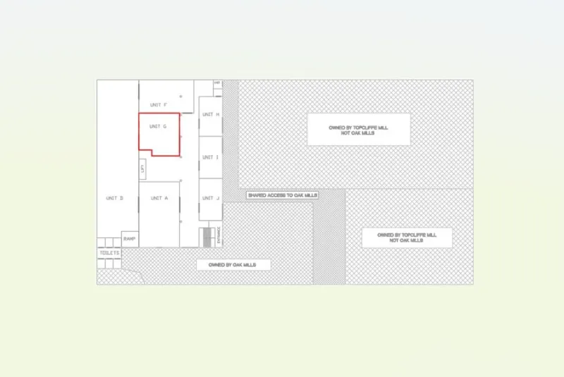
Unit G

7.75m x 8.2m
  • Specifications
  • Reviews
Product Specifications!
Specification Details

Unit Size

7.75m x 8.2m

Our Reviews!
Steve Denton
Great company, thank you so much!
Jo Beecham
We will recommend you to everyone we know
Our Prices!
Our Price: From £800.00
Contact Us
Back To Units
Product Description

UNIT G: BIG UNIT AT BACK BOTTOM FLOOR



Industrial & Commercial Units to Let - Oak Mills, Morley, Leeds

Looking for industrial units, workshops, offices, or commercial premises to rent in Morley, Leeds? Oak Mills offers secure, flexible, and modern units in a historic mill building, ideal for manufacturers, storage, and light industrial businesses. Our units feature excellent security, communal lifting equipment, and 24-hour access, making them some of the best industrial spaces in South Leeds.

Available Units - Unit G - Industrial Unit

- Rent: £800 PCM (+ VAT)

- Deposit: 1 Months' rent

- Eligible for Free business rates: We will help complete your paperwork

Size: 7.75m x 8.2m (Approx. 56.5 m² / 608 sq ft)

About This Unit: Located at the bottom end of the mill, Unit G offers 608 sq ft of versatile ground-floor space. With both a main shutter and a separate main door, it provides flexible access for staff, equipment, and deliveries.

The unit was previously used by a joiner operating heavy machinery, making it well-suited for workshops, small-scale manufacturing, or specialist trades. Tenants also benefit from shared toilet facilities, plus access to on-site forklift and pallet trucks to simplify day-to-day operations.

Location: Ground Floor, Oak Mills, Texas Street, Morley, Leeds, LS27 0HL

Access: Outside from the main alleyway.

Power: Single phase - Metered supply / Three phase - Metered supply


Features:

- Shutter access directly from the yard for easy loading/unloading

- Shared, private, secure yard with CCTV

- Customisation of units permitted by landlord on request.

- Private metred electricity supply

- Water rates included

- Owner-monitored alarm system

- Communal forklift & pallet truck access

- Running water, sink, and electricity supply

- Onsite toilets and shared facilities

- 24-hour secure access for tenants

- Not suitable for car repairs, mechanics, or valeting due to access (See Plan)

- Lease term: Negotiable - 3 months minimum

- Class: Industrial B1, B2, B8


Enquire / Book a Viewing for this workshop for rent


Oak Mills - Key Benefits

  • Flexible industrial and commercial units to let in Morley, Leeds
  • Secure site with CCTV, monitored alarms, and covered yard
  • Communal forklift & pallet truck access for heavy goods
  • Onsite office open 8am - 4pm for accepting parcels and deliveries
  • 24-hour access to units for tenants
  • Excellent location near Leeds, Wakefield, and the M62
  • Water, sink, and lone toilet facilities included
  • Perfect for manufacturing, workshops, storage, or light industrial use


How to View

To arrange a viewing of our commercial units to let, We have an office on the top floor of Oak Mills, so you can pop up and ring the bell - we'll show you around personally.

- Viewing Times: Units: Monday - Thursday, 9:30am - 3:30pm

- Contact Numbers: Samantha: 07738 607466

- Address: Oak Mills, Texas Street, Morley, Leeds, LS27 0HL

Book Your Viewing Today - Secure Your Unit Now


SEO Meta Description

Industrial units, workshops, offices, and business premises to let in Morley, Leeds. Secure units with CCTV, alarm system, forklift access, covered yard, water, toilets & 24-hour access. Book a viewing today!

For any enquiries or questions, do not hesitate to contact us!

Oak Mills, Unit 8, Oak Mills, Texas Street (off Topcliffe Lane), Morely, Leeds, LS270HG

Tel. 07738 607466

Email. info@better-bounce.co.uk

Join Our Newsletter!
SHOPPING CART

Loading cart...